Home search
Code
Type
Use
Category
City
Zone
Description
Price
Sqm
Prder
SEARCH
<< Back
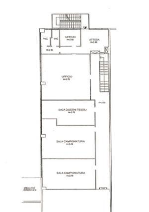
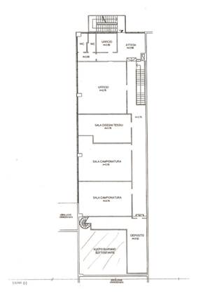
V001302 - Como (Camerlata)
Laboratory
Price
540,000.00 EUR
Sqm
750
Energetic class
C (314.41 [kWh/m³a])
Rooms
5

MAP

via Tentorio , Como (CO)
info@agenzialogicasa.it +39 031 241193
Cookie preference