Home search
Code
Type
Use
Category
City
Zone
Description
Price
Sqm
Prder
SEARCH
<< Back
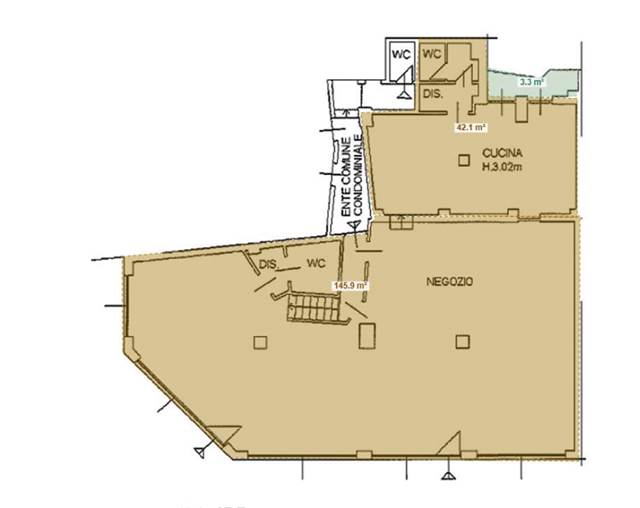
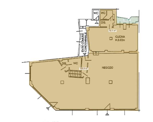
V001281 - Como (Borghi)
Office
Price
260,000.00 EUR
Sqm
200
Energetic class
G
Rooms
3
Sqm boxes
12
Free Sides
2
Furniture
Not Furnished
Hot Water
Independent
Fixtures
Steel
Doors
Good
Blind
Metal Blinds
Cellar - Attic
Cellar
Accessories
Electric shutters

MAP

via Magenta 8, Como (CO)
info@agenzialogicasa.it +39 031 241193
Cookie preference