Home search
Codice
Tipologia
Uso
Categoria
Città
Zona
Descrizione
Prezzo
Mq
Ordine
CERCA
<< Torna indietro
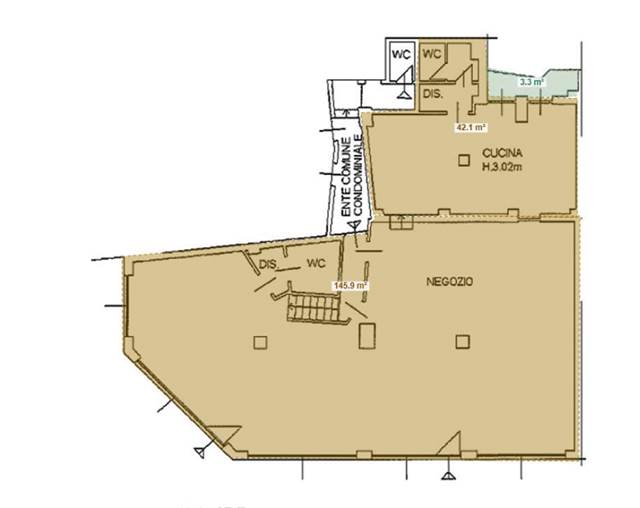
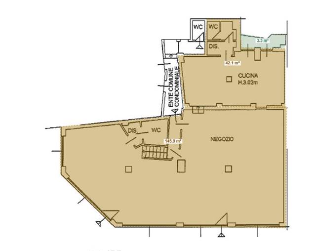
Negozio zona Borghi
Negozio
Logicasa propone in vendita ampio negozio d'angolo con 5 vetrine.
Al piano terra superficie commerciale di 197 mq, collegata internamente con il seminterrato uso deposito di circa 188 mq.
Libero e subito disponibile, necessita di lavori di ammodernamento per adattarlo alle esigenze del futuro utilizzatore.
Possibilità di adibire l'immobile oltre che a negozio, a studio professionale o medico, Ufficio, show room.
Contattaci per un sopralluogo.

Libero e subito disponibile, rappresenta anche un ottimo investimento.

Se desideri vendere o permutare il tuo immobile contattaci allo 031.241193, lo staff Logicasa offre il servizio di analisi di mercato e valutazione gratuita dell'immobile da vendere, inoltre avrai il supporto del Team Logicasa, professionisti a Como dal 1985, potrai così realizzare la tua vendita velocemente e alle migliori condizioni di mercato, anche con permuta.
Inoltre se ti interessa acquistare tramite mutuo, avrai a disposizione il nostro consulente del credito che ti potrà fornire tutte le informazioni e un preventivo personalizzato.

N.B.: Il presente annuncio non costituisce vincolo contrattuale, tutti i dati citati nell'annuncio sono da ritenersi indicativi. L'immobile si intende venduto a corpo e non a misura.
Prezzo
260.000,00 EUR
Mq
200
Classe Energetica
G
Locali
3
Mq box
12
Posizione
Centro
Lati Liberi
2
Arredi
Non Arredato
Infissi
Acciaio
Serramenti
Buono
Persiana
Tapparella Metallo
Cantina - Solaio
Cantina
Accessori
Antifurto

MAPPA

via Magenta 8, Como (CO)
info@agenzialogicasa.it +39 031 241193
Cookie preference